Previous | Next | Discuss :: Free Advice (General Feng Shui)
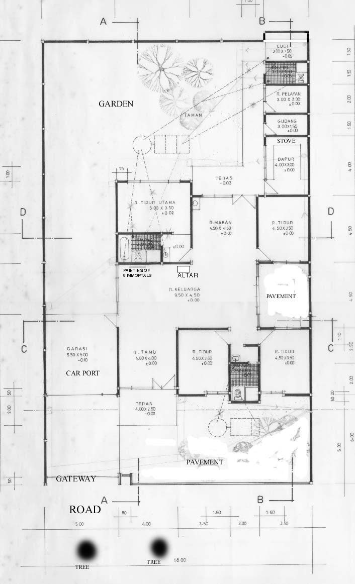
Dear Cecil, Please see below: > 5. No, the altar should preferably not be placed on the same wall as the > toilet. This is considered inauspicious. The altar in my house shares the same wall with the toilet but it is not on the other side of the toilet. Perhaps the picture I attach could clarify the situation. In addition, there is a painting of "The 8 Immortals crossing the sea" hanged on the wall which is exactly on the other side of the toilet. Are both placements of altar & painting considered inauspicious? Thanks in advance. Regards, Wasis > >As for an altar, is it ok to > >be placed on the same wall as > >the toilet?
Blue Print copy.jpg
Blue Print of my house (90,137 bytes)
|
|
[ Site Search | Forum Search | Picture Search | Site Map ] |
|
|
|
|
||
|
Help Desk: (65) 9785-3171 |
||
|
|
|
|
|
Highlights |
|
Extend your learning with Master Cecil Lee's Applied Feng Shui Made Easy Book. |
|
Site Navigation |
|
|
|
|
![]()